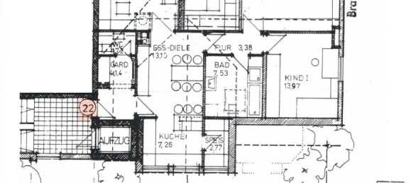
Apartamento de 3 dormitorios en Donau-Ries, Germany No. 363980
$ 373 900
$ 3 338 por m²
4
Habitaciones
3
Dormitorios
1
Baños
112
Espacio vital, m²
Donau-Ries, Germany
Parámetros
Habitaciones
4
Dormitorios
3
Baños
1
Espacio vital, m²
112
ID
363980
Tipo
Apartamento
Fecha de finalización
IV barrio, 1982
Características
Características
- Balcón
Instalaciones interiores
- Almacén
- Ascensor
- Garaje
Instalaciones exteriores
- Aparcamiento














