Casa de 5 habitaciónes en Suzzara, Italy No. 270307
$ 259 556
$ 837 por m²
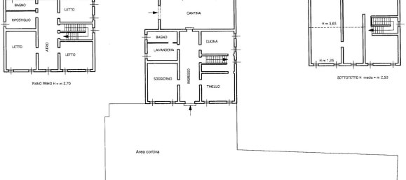
5
Habitaciones
2
Baños
310
Espacio vital, m²
Suzzara, Italy
Parámetros
Habitaciones
5
Baños
2
Espacio vital, m²
310
ID
270307
Tipo
Casa
Zona del terreno, m²
36000
Características
Instalaciones interiores
- Almacén
- Garaje
Instalaciones exteriores
- Aparcamiento
- Jardín










