Descripción de la propiedad
Apartamento en venta con inquilino solvente.El apartamento forma parte de un complejo de excelentes calidades, con salida directa al paseo y la playa. El complejo dispone de conserje, salón de relax para los vecinos y una fantástica terraza comunitaria, desde la que puede tomar el sol o disfrutar de una lectura contemplando el mar Mediterráneo.
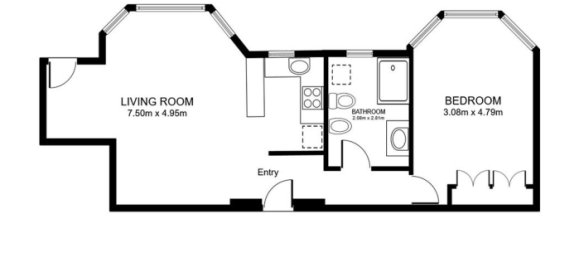
El apartamento consta de 1 habitación, salón con cocina office y 1 baño. 1 plaza de parking y trastero.
Totalmente amueblado y equipado. Estado de conservación impecable.
La Playa de la Patacona, es una playa urbana, prolongación natural de la Playa de la Malvarrosa. De más de un kilómetro de longitud y muy amplia. Abierta y de arena fina está dotada de pasarela de acceso, aseos, WC, duchas, vestuario y aparcamientos adaptados para personas con movilidad reducida. La Patacona, desde mediados de los años 90, se ha convertido en una zona residencial, que cuenta con todos los servicios: transporte público, colegios, comercios, restaurantes, farmacia y centro médico. Más propiedades en patacona. es.























