ALH Properties
ALH Properties
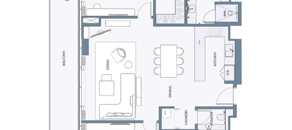
Apartamento de 1 dormitorio en Mina Al Arab, UAE No. 121355
$ 844 111
$ 11 563 por m²
1
Dormitorios
73
Espacio vital, m²
Mina Al Arab, UAE
ALH Properties
ALH Properties
Parámetros
Dormitorios
1
Espacio vital, m²
73
ID
121355
Tipo
Apartamento
Fecha de finalización
II barrio, 2028
Características
Instalaciones interiores
- Restaurante
- Sala de pilates y yoga
ALH Properties
ALH Properties
















Sky View Real Estate
Luxfolio Real Estate
Espace