4 chambres Maison à Inzenhof, Austria No. 136585
$ 2 677 660
$ 8 528 Prix pour m²
10
des chambres
4
Chambres
2
Salles de bain
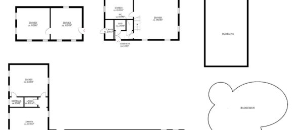
314
Espace de vie, m²
Inzenhof, Austria
Paramètres
des chambres
10
Chambres
4
Salles de bain
2
Espace de vie, m²
314
ID
136585
Type
Maison
Superficie, m²
40000
Date d'achèvement
IV quartier, 1875
Caractéristiques
Caractéristiques
- Terrasse
Caractéristiques extérieures
- Jardin
- Piscine
















