8-salle Villa à Klagenfurt am Worthersee, Austria No. 160155
$ 1 664 806
$ 5 014 Prix pour m²
8
des chambres
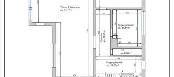
332
Espace de vie, m²
Klagenfurt am Worthersee, Austria
Paramètres
des chambres
8
Espace de vie, m²
332
ID
160155
Type
Villa
Superficie, m²
724
Date d'achèvement
IV quartier, 1930
Caractéristiques
Caractéristiques
- Terrasse
Installations intérieures
- Garage
Caractéristiques extérieures
- Parking
- Jardin



















