5-salle Villa à Grossriedenthal, Austria No. 174344
$ 705 180
$ 1 948 Prix pour m²
5
des chambres
3
Salles de bain
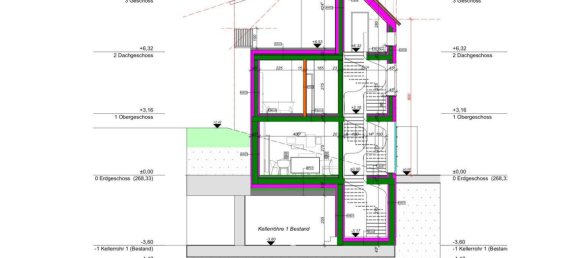
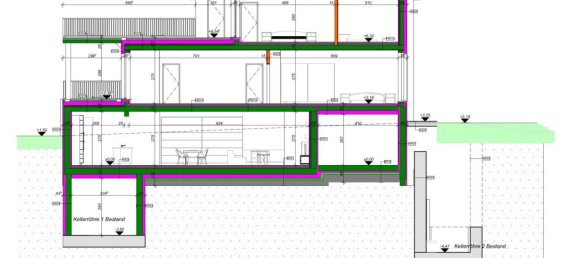
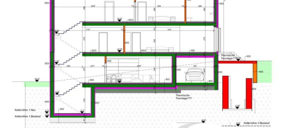
362
Espace de vie, m²
Grossriedenthal, Austria
Paramètres
des chambres
5
Salles de bain
3
Espace de vie, m²
362
ID
174344
Type
Villa
Superficie, m²
150
Caractéristiques
Caractéristiques
- Terrasse
Caractéristiques extérieures
- Parking
- Jardin














