4 chambres Villa à Sachsische Schweiz-Osterzgebirge, Germany No. 171130
$ 1 922 244
$ 5 445 Prix pour m²
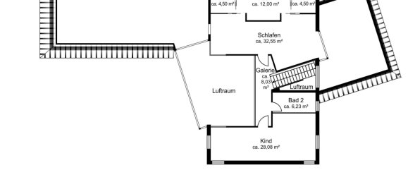
7
des chambres
4
Chambres
3
Salles de bain
353
Espace de vie, m²
Sachsische Schweiz-Osterzgebirge, Germany
Paramètres
des chambres
7
Chambres
4
Salles de bain
3
Espace de vie, m²
353
ID
171130
Type
Villa
Superficie, m²
2747
Date d'achèvement
IV quartier, 2000
Caractéristiques
Caractéristiques
- Terrasse
Installations intérieures
- Garage
Caractéristiques extérieures
- Parking































