9-salle Maison de ville à Tirschenreuth, Germany No. 3165
$ 227 838
$ 1 205 Prix pour m²
9
des chambres
2
Salles de bain
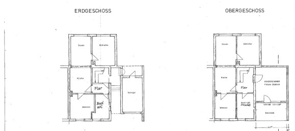
189
Espace de vie, m²
Tirschenreuth, Germany
Paramètres
des chambres
9
Salles de bain
2
Espace de vie, m²
189
ID
3165
Type
Maison de ville
Date d'achèvement
IV quartier, 1930
Caractéristiques
Caractéristiques
- Balcon
Installations intérieures
- Garde-manger
- Garage







