7-salle Bâtiment à Rottweil, Germany No. 79282
$ 316 662
$ 1 267 Prix pour m²
28.03.2025
$ 346 932
7
des chambres
1
Salles de bain
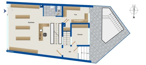
250
Espace de vie, m²
Rottweil, Germany
Paramètres
des chambres
7
Salles de bain
1
Espace de vie, m²
250
ID
79282
Adresse
Färbergasse
Type
Bâtiment
Superficie, m²
203
Date d'achèvement
IV quartier, 1960














