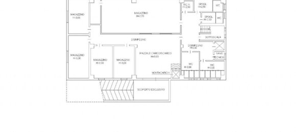
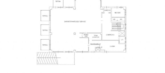
Bâtiment à Monte Porzio, Italy 1000m² No. 372518
$ 339 909
$ 340 Prix pour m²
1000
Espace de vie, m²
Monte Porzio, Italy
Paramètres
Espace de vie, m²
1000
ID
372518
Adresse
autostrada SP424
Type
Bâtiment
Caractéristiques
Installations intérieures
- Garde-manger
- Ascenseur
Caractéristiques extérieures
- Parking















