Casa de 3 divisões em Spital am Semmering, Austria N.º 151695
$ 219 883
$ 3 141 por m²
3
Divisões
1
Casas de Banho
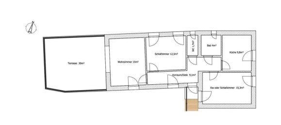
70
Área útil, m²
Spital am Semmering, Austria
Parâmetros
Divisões
3
Casas de Banho
1
Área útil, m²
70
ID
151695
Tipo
Casa
Área do terreno, m²
162
Data de conclusão
IV quarto, 1920
Características
Características
- Varanda
- Terraço
- Mobilado
Instalações internas
- Garagem
Características exteriores
- Parque para carros


















