Apartamento de 5 divisões em Bad Radkersburg, Austria N.º 21375
$ 405 477
$ 1 959 por m²
5
Divisões
2
Casas de Banho
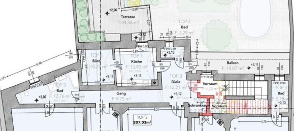
207
Área útil, m²
Bad Radkersburg, Austria
Parâmetros
Divisões
5
Casas de Banho
2
Área útil, m²
207
ID
21375
Tipo
Apartamento
Características
Localização
- Orientação para sul
Características
- Varanda
- Terraço
Características exteriores
- Parque para carros
- Jardim



















