Villa de 8 divisões em Eichgraben, Austria N.º 254277
$ 4 922 820
$ 13 637 por m²
8
Divisões
4
Casas de Banho
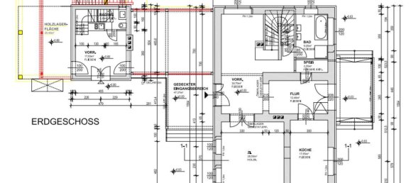
361
Área útil, m²
Eichgraben, Austria
Parâmetros
Divisões
8
Casas de Banho
4
Área útil, m²
361
ID
254277
Tipo
Villa
Área do terreno, m²
33180
Data de conclusão
IV quarto, 1925
Características
Características
- Varanda
- Terraço
Instalações internas
- Arrecadação
- Garagem
Características exteriores
- Parque para carros
- Jardim





























