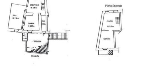
Duplex de 5 divisões em Podenzana, Italy N.º 111533
$ 127 258
$ 1 273 por m²
5
Divisões
1
Casas de Banho
100
Área útil, m²
Podenzana, Italy
Parâmetros
Divisões
5
Casas de Banho
1
Área útil, m²
100
ID
111533
Morada
via SP20, 83
Tipo
Duplex
Características
Localização
- Orientação para sul
- Orientação para leste
Características
- Varanda
- Terraço
Instalações internas
- Arrecadação
Características exteriores
- Jardim




















