Descrição do imóvel
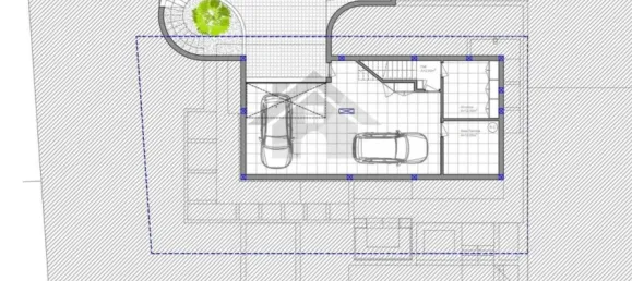
Lote de Terreno para Venda na Urbanização Encosta Dourada, com Projeto Aprovado para Moradia T3+1, com uma área bruta de construção total de aproximadamente 400 m2, distribuídos da seguinte forma: rés do chão e primeiro piso com 300 m2 e cave com 100 m2.Características do Projeto:Design Moderno e Minimalista: A moradia projetada segue linhas modernas e minimalistas, proporcionando um ambiente elegante e funcional.Piscina e Jardim: Inclui uma piscina privativa e um amplo jardim, ideais para desfrutar de momentos de lazer ao ar livre.Vistas Deslumbrantes: O design da moradia foi concebido para aproveitar ao máximo as vistas deslumbrantes e a exposição solar predominante a sul.Divisões da Moradia:Cave:Garagem para 2 carros.Lavandaria.Área técnica para domótica.Rés do Chão:Hall de entrada espaçoso.Sala de estar e sala de jantar em open space com duplo pé direito, conferindo imponência à área.Cozinha equipada com ilha.Escritório ou quarto adicional.Instalações sanitárias.Acesso direto ao deck da piscina e ao jardim.Primeiro Andar:Três quartos, incluindo uma master suite com um magnífico closet e casa de banho privativa.Todos os quartos com vistas deslumbrantes, incluindo uma vista mar distante.Urbanização Encosta Dourada:Composta por 45 lotes de terreno, esta urbanização é caracterizada pela arquitetura moderna das suas moradias.Localizada a apenas 3,5 km da orla costeira, oferece um ambiente tranquilo e recente, ideal para viver com comodidade e proximidade a tudo o que necessita.Localização:Proximidade a Serviços e Comércio: Supermercados, farmácias, postos de combustível, escolas, restaurantes e praias.Distâncias de Carro:Centro Comercial Algarve Shopping: 5 minutos.Praia Grande de Pêra e Praia dos Salgados: 10 minutos.Campo Golfe dos Salgados: 10 minutos.Amendoeira Golf Resort: 10 minutos.Hospital Lusíadas de Albufeira: 15 minutos.NOBEL - Escola Internacional do Algarve: 15 minutos.Aeroporto Internacional de Faro: 35 minutos.Esta é uma excelente oportunidade para construir a sua moradia de sonho, quer seja para residência permanente, férias ou como investimento. A combinação de elegância, conforto e localização privilegiada torna este lote uma escolha excecional.Para mais informações e agendamento de visitas, não hesite em contactar-nos. Não perca esta oportunidade única!Ref.: 5619











