Descrição do imóvel
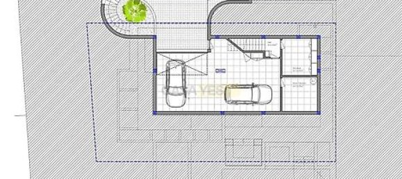
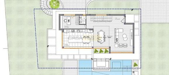
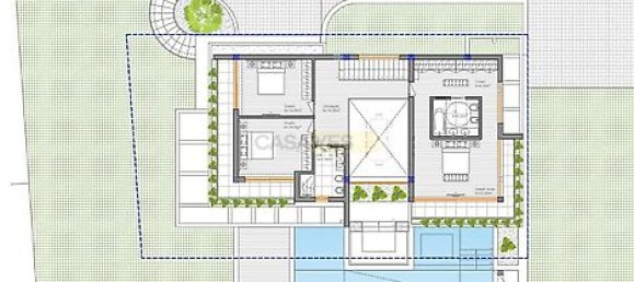
Lote de Terreno para Venda na Urbanização Encosta Dourada, com Projeto Aprovado para Moradia T3+1, com uma área bruta de construção total de aproximadamente 400m², distribuídos da seguinte forma: rés do chão e primeiro piso com 300m² e cave com 100m². Características do Projeto: Design Moderno e Minimalista: A moradia projetada segue linhas modernas e minimalistas, proporcionando um ambiente elegante e funcional. Piscina e Jardim: Inclui uma piscina privativa e um amplo jardim, ideais para desfrutar de momentos de lazer ao ar livre. Vistas Deslumbrantes: O design da moradia foi concebido para aproveitar ao máximo as vistas deslumbrantes e a exposição solar predominante a sul. Divisões da Moradia: Cave: Garagem para 2 carros. Lavandaria. Área técnica para domótica. Rés do Chão: Hall de entrada espaçoso. Sala de estar e sala de jantar em open space com duplo pé direito, conferindo imponência à área. Cozinha equipada com ilha. Escritório ou quarto adicional. Instalações sanitárias. Acesso direto ao deck da piscina e ao jardim. Primeiro Andar: Três quartos, incluindo uma master suite com um magnífico closet e casa de banho privativa. Todos os quartos com vistas deslumbrantes, incluindo uma vista mar distante. Urbanização Encosta Dourada: Composta por 45 lotes de terreno, esta urbanização é caracterizada pela arquitetura moderna das suas moradias. Localizada a apenas 3,5 km da orla costeira, oferece um ambiente tranquilo e recente, ideal para viver com comodidade e proximidade a tudo o que necessita. Localização: Proximidade a Serviços e Comércio: Supermercados, farmácias, postos de combustível, escolas, restaurantes e praias. Distâncias de Carro: Centro Comercial Algarve Shopping: 5 minutos. Praia Grande de Pêra e Praia dos Salgados: 10 minutos. Campo Golfe dos Salgados: 10 minutos. Amendoeira Golf Resort: 10 minutos. Hospital Lusíadas de Albufeira: 15 minutos. NOBEL - Escola Internacional do Algarve: 15 minutos. Aeroporto Internacional de Faro: 35 minutos. Esta é uma excelente oportunidade para construir a sua moradia de sonho, quer seja para residência permanente, férias ou como investimento. A combinação de elegância, conforto e localização privilegiada torna este lote uma escolha excecional. Para mais informações e agendamento de visitas, não hesite em contactar-nos. Não perca esta oportunidade única! Ref. : 5619











