Castelos T25 em Alcanena, Portugal N.º 140561
$ 1 164 500
$ 1 023 por m²
25
Quartos
5
Casas de Banho
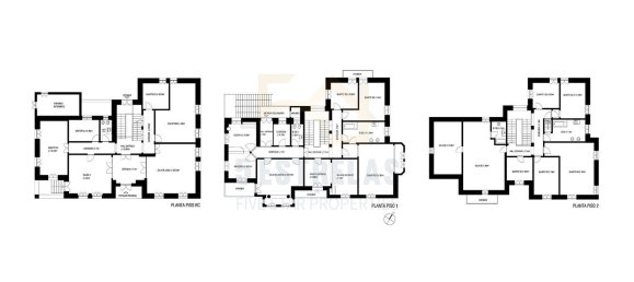
1138
Área útil, m²
Alcanena, Portugal
Parâmetros
Quartos
25
Casas de Banho
5
Área útil, m²
1138
ID
140561
Morada
rua José Alves Anastácio
Tipo
Castelos
Área do terreno, m²
2228
Data de conclusão
IV quarto, 1932
Características
Localização
- Orientação para norte
- Orientação para sul
- Orientação para leste
- Orientação para oeste
Características
- Varanda
- Terraço
Instalações internas
- Arrecadação
- Garagem
Características exteriores
- Jardim
Statistics Alcanena
$ 1 942
Price per m²
N/A
Quality of Life Index
N/A
Cost of living Index
Parâmetros
[:second_city:]
Santarem
Diferença
Monthly Rent Cost
1-Room Apartment
$ 618
2-Room Apartment
$ 232
Apartment Purchase Price per m²
In the City Center
$ 1 942
Outside the City Center
$ 1 160
índice Criminal
46
Índice de Rendas e Custo de Vida
N/A
Índice de Poder de Compra
N/A
Relação entre Ganhos/Preço das Propriedades
7
Índice de Segurança
54
Índice de Circulação de CO₂
2130
Índice de Ineficiência
117
Índice de Renda
13
Índice de Assistência Médica
74
Índice de Produtos Alimentares
45
Índice de Poluição
29
Índice de Tráfego
38
Índice de Preços de Restaurantes
41
Indíce Climático
99
Índice de Custo de Vida
N/A
Índice de Qualidade de Vida
N/A
índice de Tráfico
126
Restaurantes
Refeição, restaurante barato
$ 13.33
Refeição para 2 pessoas, restaurante de custo médio, 3 pratos
$ 40.58
McMenu num McDonalds (ou Menu equivalente)
$ 8.70
Cerveja (0,5 litros)
$ 2.32
Cerveja importada (garrafa de 33cl)
$ 3.48
Coca-cola/Pepsi (garrafa de 33cl)
$ 1.62
Água (garrafa de 33cl)
$ 1.16
Cappuccino (Normal)
$ 2.01
Mercados
Leite (normal), (1 litro)
$ 1.06
Pão branco (500g)
$ 0.46
Ovos (normais) (12)
$ 3.13
Queijo local (1kg)
$ 11.21
Água (garrafa de 1,5 litros)
$ 0.31
Garrafa de Vinho (gama média)
$ 6.09
Cerveja (garrafa de 0,5 litros)
$ 1.30
Cerveja importada (garrafa de 33cl)
$ 3.77
Cigarros - Pacote de 20 (Marlboro)
$ 5.97
Maçãs (1kg)
$ 2.63
Filetes de Frango (1kg)
$ 7.73
Laranjas (1kg)
$ 2.20
Batata (1kg)
$ 1.45
Alface (1kg)
$ 0.90
Arroz Branco (1kg)
$ 1.15
Tomate (1kg)
$ 2.31
Banana (1kg)
$ 1.39
Cebola (1kg)
$ 1.62
Carne de Vaca (1kg) (ou Carne Vermelha Equivalente)
$ 13.91
Transportes
Bilhete de viagem (Transporte local)
$ 2.32
Passe mensal (preço normal)
$ 57.98
Gasolina - 1 Litro
$ 1.95
Volkswagen Golf 1.4 90 KW (Ou Carro Novo Equivalente)
$ 36 839
Tarifa Inicial de Taxi (Tarifa Normal)
$ 3.77
Taxa - 1km (Tarifa normal)
[:nprice_108:]
Taxi -1 hora com espera (Tarifa Normal)
[:nprice_109:]
Toyota Corolla Sedan 1.6l 97kW Comfort (Or Carro Novo Equivalente)
$ 39 505
Encargos (mensal)
Custos básicos (Eletricidade, Aquecimento, Água, Recolha de lixo) para um Apartamento de 85m2
$ 85.12
Internet (60 Mbps ou mais, Dados Ilimitados, Cabo/ADSL)
$ 50.25
Mobile Phone Monthly Plan with Calls and 10GB+ Data
$ 21.45
Pagamentos e financiamento
Salário Líquido Mensal Médio (depois de excluir taxas)
$ 1 102
Valor Anual do Juro em Percentagens (%), por 20 Anos - Tarifa Fixa
5%
Desportos e lazer
Ginásio - Taxa Mensal para 1 Adulto
$ 38.84
Cinema, Estreias Internacionais - 1 Lugar
$ 6.96
Roupa e sapatos
1 Par de Calças (Levis 501 ou Equivalente)
$ 86.96
1 Vestido de Verão numa Cadeia de Lojas (Zara, H&M...)
$ 39.13
1 Par de Ténis da Nike (game média)
$ 100
1 Par de Sapatos de Couro para Homem
$ 92.76
Creches/Jardins Infantis
Preço por Mês em Pré-escola ou Jardim Infantil privado por Criança (Dia Inteiro)
$ 441
Escola Primária Internacional. Preço Anual por Criança
$ 26 611
Ofertas parecidas
$ 1 164 500
Palacete com muito charme no centro de Alcanena.É em Alcanena, na freguesia de Vila Moreira, que encontramos este lindo palacete, com azulejos Viúva Lamego, rodeado de jardins. A sua construção...















































