Descrição do imóvel
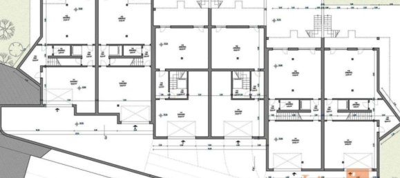
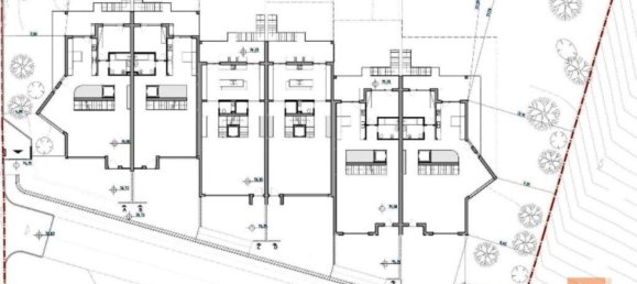
Descubra este terreno urbano com excelente exposição solar, já com licença de construção a pagamento disponível para 6 magníficas moradias em banda.Características das Moradias:
Duas Moradias:
- Sala de 70m².
- Cozinha 15.40 m2.
- 4 Quartos.
- Escritório.
- Sala de jogos/lazer.
- 4 Casas de banho.
Duas Moradias:
- Sala de 60m²
- Cozinha 15,35 m2.
- 4 Quartos.
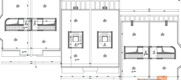
- Sala de jogos/lazer de 51m².
- 4 Casas de banho.
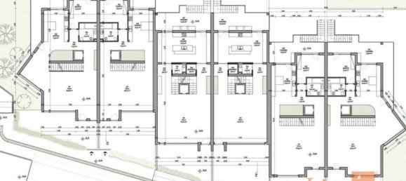
Uma Moradia:
- Sala de 61m².
- Cozinha 31,5 m2.
- 4 Quartos.
- Sala de jogos/lazer de 43m².
- 5 Casas de banho.
Ultima Moradia:
- Sala de 61m².
- Cozinha 31,5 m2.
- 3 Quartos.
- Sala de jogos/lazer de 43m².
- 4 Casas de banho.
Todas as moradias incluem box para duas viaturas.
Localização Privilegiada
Situado na encantadora vila de Turcifal, este terreno está próximo da Serra do Socorro e das renomadas vinhas da Quinta do Almiara e da Adega Mãe, na região vinícola de Torres Vedras.
Com ótimos acessos à Estrada Nacional 8 e à A8, fica a apenas 7 km de Torres Vedras, a 20 minutos das praias de Santa Cruz e a 40 minutos de Lisboa.
Aproveite a proximidade de transportes públicos, escolas e serviços!
Não perca esta oportunidade de investimento! Para mais informações, entre em contato.
Deixe o seu crédito nas nossas mãos, somos intermediários de crédito com o número 0003129 autorizado pelo Banco de Portugal e garantimos as melhores soluções financeiras para si.
*As informações apresentadas neste anúncio são de natureza meramente informativa não podendo ser consideradas vinculativas, não dispensa a consulta e confirmação das mesmas junto da mediadora.
Categoria Energética: Isento
ref: 9473AA.
- Sala de jogos/lazer de 51m².
- 4 Casas de banho.
Uma Moradia:
- Sala de 61m².
- Cozinha 31,5 m2.
- 4 Quartos.
- Sala de jogos/lazer de 43m².
- 5 Casas de banho.
Ultima Moradia:
- Sala de 61m².
- Cozinha 31,5 m2.
- 3 Quartos.
- Sala de jogos/lazer de 43m².
- 4 Casas de banho.
Todas as moradias incluem box para duas viaturas.
Localização Privilegiada
Situado na encantadora vila de Turcifal, este terreno está próximo da Serra do Socorro e das renomadas vinhas da Quinta do Almiara e da Adega Mãe, na região vinícola de Torres Vedras.
Com ótimos acessos à Estrada Nacional 8 e à A8, fica a apenas 7 km de Torres Vedras, a 20 minutos das praias de Santa Cruz e a 40 minutos de Lisboa.
Aproveite a proximidade de transportes públicos, escolas e serviços!
Não perca esta oportunidade de investimento! Para mais informações, entre em contato.
Deixe o seu crédito nas nossas mãos, somos intermediários de crédito com o número 0003129 autorizado pelo Banco de Portugal e garantimos as melhores soluções financeiras para si.
*As informações apresentadas neste anúncio são de natureza meramente informativa não podendo ser consideradas vinculativas, não dispensa a consulta e confirmação das mesmas junto da mediadora.
Categoria Energética: Isento
ref: 9473AA.










