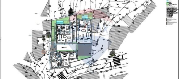
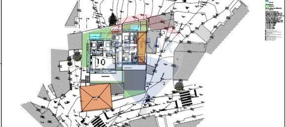
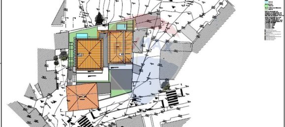
Descrição do imóvel
Excelente oportunidade de negócio, lote em óptima localização, com projecto de arquitetura APROVADO na CM Cascais.O Projecto de arquitetura prevê a seguintes construções:
T2 – 132,43 m2
2 suite (uma c/ closet);
Wc Social
Sala e Cozinha em Open Space
Varanda / Terraço 65m2
Moradia T3 – 217,42 m2 c/ piscina
1º Piso 124 m2
Sala e Cozinha em Open Space
Quarto
WC Social
Varanda/Terraço – 27 m2
2º Piso 93,42 m2
2 Suites
T2 – 132,43 m2
2 suite (uma c/ closet)
Wc Social
Sala e Cozinha em Open Space
Varanda / Terraço 65m2
T2 – 112, 50 m2 c/ piscina
2 Suites
Wc Social
Sala e Cozinha em Open Space
Terraço – 23 m2
Loja – 75 m2
Garagem em Piso térreo - Lugares de garagem para todas as fracções.
IMPORTANTE: Disponibilizamos Relatório avaliação ao imobiliária, com valor proposto para as 5 fracções, validade e reserva de valor de mercado.
Nota: A informação disponibilizada não dispensa a sua confirmação e não pode ser considerada vinculativa.
No lote encontra-se edificado uma moradia e anexo, para demolição e posterior construção. .
T2 – 132,43 m2
2 suite (uma c/ closet)
Wc Social
Sala e Cozinha em Open Space
Varanda / Terraço 65m2
T2 – 112, 50 m2 c/ piscina
2 Suites
Wc Social
Sala e Cozinha em Open Space
Terraço – 23 m2
Loja – 75 m2
Garagem em Piso térreo - Lugares de garagem para todas as fracções.
IMPORTANTE: Disponibilizamos Relatório avaliação ao imobiliária, com valor proposto para as 5 fracções, validade e reserva de valor de mercado.
Nota: A informação disponibilizada não dispensa a sua confirmação e não pode ser considerada vinculativa.
No lote encontra-se edificado uma moradia e anexo, para demolição e posterior construção. .








Listanza Services Group