Descrição do imóvel
Armazém e Escritórios totalmente requalificado e remodelado no Prior VelhoApresentamos um armazém de excelência, totalmente remodelado, situado numa localização privilegiada na área industrial do Aeroporto Humberto Delgado, no Prior Velho. Este imóvel é perfeito para empresas que procuram um espaço amplo e moderno para suas operações logísticas e industriais.
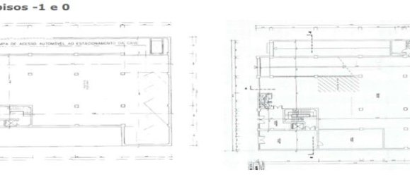
Distribuído por 5 pisos, o armazém oferece uma área bruta de 4.500 m² e uma área útil de 4.082 m². A cave, com 810 m², tem acesso automóvel direto à rua, facilitando a movimentação de mercadorias. O rés do chão, com 937 m², inclui um gabinete na entrada, sanitários e copa, ideal para a recepção e armazenamento de produtos.
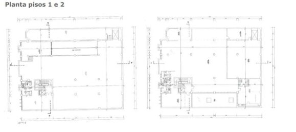
O 1º piso, com 945 m², também destinado a armazém, conta com 2 gabinetes e uma rampa de acesso, proporcionando ainda mais funcionalidade. Já o 2º piso, com 874 m², é dedicado a escritórios modernos e confortáveis, equipados com WC's e zona de arrumos. O 3º piso, com 516 m², também é destinado a escritórios, oferecendo um ambiente de trabalho espaçoso e bem iluminado.
Este imóvel destaca-se pela sua facilidade de circulação de viaturas pesadas nos pisos cave, rés-do-chão e 1º andar, além de possuir ligação entre os pisos por caixa de escadas comum e 2 elevadores. A localização estratégica permite rápidos acessos às principais vias como A1, A36, A12 e 2. ª Circular.
Equipado com sistemas de alarme e ar condicionado, este armazém oferece segurança e conforto para todas as suas operações. Não perca a oportunidade de conhecer este espaço incrível. Contacte-nos para marcar uma visita. Estamos à sua espera!
**Características Adicionais: **
- Ano de construção: 1983
- Faz esquina
- 4 casas de banho
- Ar condicionado
- Sistemas de alarme
Venha descobrir o espaço ideal para o crescimento da sua empresa!

